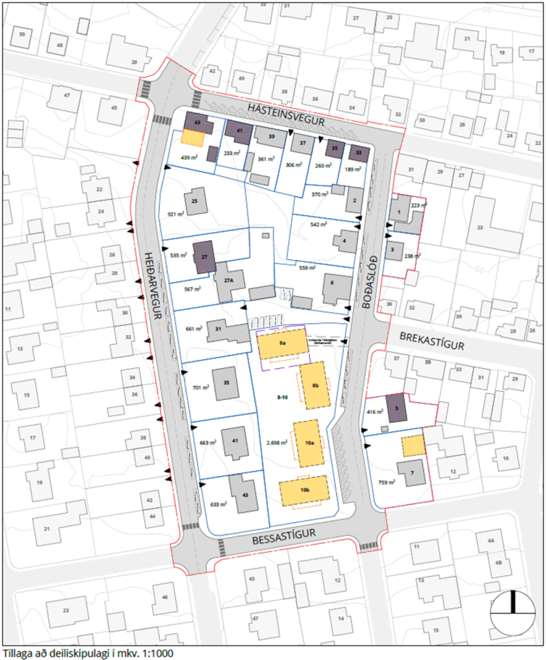
Við Boðaslóð 8-10 er gert ráð fyrir fjórum litlum fjölbýlishúsum fyrir samtals 16-18 íbúðir. Gert er ráð fyrir bílakjallara í norðurenda lóðarinnar fyrir allt að 16 bíla, en auk þess er legu gangstéttar við Boðaslóð breytt þannig að hægt verði að koma fyrir skábílastæðum og koma þannig fyrir fleiri stæðum við götuna.
Auk breytinga við Boðaslóð 8-10 er eru helstu breytingar að gert er ráð fyrir viðbyggingu til suðurs við jarðhæð Hásteinsvegs 43, bílskúr við Boðaslóð 7 og að heimilt sé að lyfta mænisþaki við Hásteinsveg 39 til samræmis við aðliggjandi hús. Að lokum eru settir fram almennir skilmálar m.a. fyrir girðingar og skjólveggi, garðskúra og fleira fyrir deiliskipulagssvæðið.
Skipulagsgögn má finna á Skipulagsgátt Skipulagsstofnunar, mál nr: 1147/2025 og á útprentuðu formi í afgreiðslu í Ráðhúsi Vestmannaeyja.
Eru íbúar og aðrir þeir sem telja sig eiga hagsmunum að gæta hvattir til að kynna sé skipulagsgögnin. Skipulagsfulltrúi er tengiliður málsins og skulu fyrirspurnir berast á tölvupóstfangið dagny@vestmannaeyjar.is.
Veittur er frestur til og með 7. apríl 2026 til að skila inn umsögn vegna deiliskipulagsins. Umsagnir skulu berast í gegnum Skipulagsgátt Skipulagsstofnunar.


